Skip to main content
Detroit
Detroit
Neighborhoods
Downtown
Corktown
Midtown
New Center
Milwaukee Junction
Southwest
Brush Park
Belle Isle
North End
Greektown
East English Village
Lafayette Park
View All→
Urbanize Network
National
Seattle
Atlanta
Austin
Chicago
Dallas
Washington DC
Detroit
Los Angeles
Miami
New York
Toronto
San Francisco
Projects
Advertise
Sign In
My Account
Sign Out
Subscribe
Search
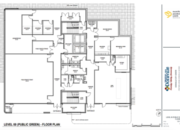
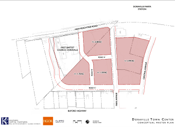
The People’s Building
Approved
Last updated 12/3/2025
Project Uses
Office
Floors (Above Ground)
4
Podium
No
Construction Type
Type 3, 4 & 5
Companies
Developer
City of Doraville
Kaufman Capital Partners
Architect
McMillan Pazdan Smith Architecture
General Contractor
Choate Construction
Add your company
Media
Stay informed.
All our breaking news, straight to your inbox.
Subscribing
Atlanta
Austin
Chicago
Dallas
Detroit
Los Angeles
Miami
NYC
San Francisco
Seattle
Toronto
Washington DC
Don't show me this again
You have
X
free articles remaining this month.
Subscribe today!
Subscribe